5 locali in vendita

Roma, Via Matteo Boiardo - Merulana
€ 750.000
5 locali 5 locali
131 Mq 131 Mq
2 bagni 2 bagni

5 locali in vendita

Roma, Via Matteo Boiardo - Merulana

Descrizione annuncio

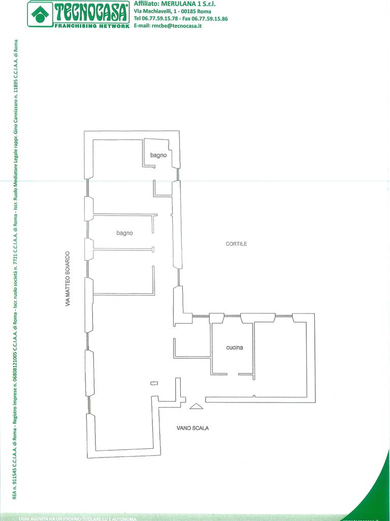
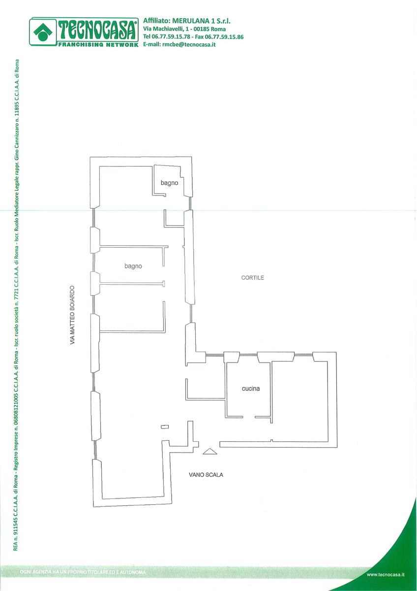
Via Matteo Boiardo – Elegante appartamento ristrutturato in stabile d’epoca.

A pochi passi dalla splendida Basilica di San Giovanni in Laterano, proponiamo in vendita un raffinato appartamento posto al terzo piano di un elegante palazzo d’inizio ’900 con ascensore. L’immobile, finemente ristrutturato, si distingue per luminosità, silenziosità e affacci aperti, caratteristiche sempre più rare nel quartiere.

La distribuzione degli spazi è funzionale ed elegante:
ingresso, ampio salone doppio con due finestre, cucina abitabile, tre camere da letto, di cui una con bagno en suite finestrato, secondo bagno anch'esso finestrato, locale lavanderia con finestra. Completano la proprietà due comodi soppalchi ad uso ripostiglio.

Le finiture valorizzano ulteriormente la proprietà:
pavimentazione in parquet in tutti gli ambienti tranne i bagni e la cucina, riscaldamento autonomo, aria condizionata inverter in tutte le stanze e impianto di allarme. Il piano medio-alto e la doppia esposizione, sulla via principale e sulla tranquilla corte condominiale, assicurano ambienti luminosi e riservati durante tutto l’arco della giornata.

La posizione è particolarmente strategica: a breve distanza dal Centro Storico, dalla Stazione Termini e dalle fermate metro San Giovanni (Linea A e C) Manzoni (Linea A) Colosseo (Linea B) e la nuova fermata Porta Metronia, con tutti i principali servizi, supermercati e negozi. Per prestigio dello stabile, qualità della ristrutturazione e posizione centrale, questa proprietà rappresenta una soluzione ideale sia come abitazione principale sia come investimento di valore nel tempo. Foto a breve.

Mostra tutto

Nelle vicinanze

Trasporto pubblico Trasporto pubblico
Manzoni
Manzoni
200 m
Vittorio Emanuele
Vittorio Emanuele
580 m
Santa Bibiana
Santa Bibiana
730 m
Termini Laziali
Termini Laziali
810 m
Principe Eugenio/Manzoni
Principe Eugenio/Manzoni
550 m
Ricariche auto elettriche Ricariche auto elettriche
Best Western Hotel President
180 m
Eneldrive Magnagrecia
700 m
Bici & Motori
1,1 Km
Roma Dipartimento Tutela Ambientale | EnelX
1,2 Km
Roma Ricci | EnelX
1,4 Km
Scuole Scuole
Istituto Santa Maria
90 m
Pontificia Università Antonianum
90 m
Collegio S. Antonio
150 m
Dipartimento di Ingegneria informatica, automatica e gestionale "Antonio Ruberti"
160 m
Istituto Comprensivo Guicciardini
330 m
Farmacia Farmacia
Trecca Mastrangeli
180 m
Farmacia Merulana
250 m
De Sanctis
340 m
Farmacia Colle Oppio
360 m
Farmacia Cuzzocrea Dottor Antonino
500 m
Ospedali Ospedali
Azienda Ospedaliera San Giovanni - Addolorata (Presidio Santa Maria)
210 m
Azienda Ospedaliera San Giovanni-Addolorata (Presidio S.Giovanni)
430 m
Pronto Soccorso San Giovanni Addolorata
490 m
Policlinico militare di Roma "Celio"
570 m
Ospedale Militare Celio
640 m
Supermercati Supermercati
Coop
320 m
Tuodì
440 m
Conad
450 m
Pacific trading
510 m
Emme piu
550 m
Negozi Negozi
Alimentari Placidi
130 m
Sangiò
260 m
Negozi
300 m
Il Fornaio
350 m
Alimentari Romoli
410 m
Bar Bar
sMa Bar
250 m
Leon@rd
420 m
San Clemente
560 m
The Sanctuary - Eco Retreat
660 m
Voodoo Bar
680 m
Ristoranti Ristoranti
Galilei
130 m
Trattoria Morgana
140 m
Hostaria I Buoni Amici
180 m
Osteria Romana
190 m
Mokadi
210 m
Mostra tutto

Caratteristiche

Rif.:
61187977
Piano:
3 di 5 con ascensore (Piano medio)
Camere da letto:
3
Arredamento:
Assente
Condizionamento:
Autonomo
Ascensore:
Mostra tutto
Prezzo Prezzo
€ 750.000
Rata mutuo Rata mutuo
€ 3.554 / mese
Spese annue Spese annue
€ 1.250
Proponi il tuo prezzoProponi il tuo prezzo

Classe Energetica

G
G
G
G
G
G
G
G
G
EP globale non rinnovabile:
175.00 kW h/m² anno
EP globale rinnovabile:
175.00 kW h/m² anno
EP invernale del fabbricato:
EP estiva del fabbricato:
Anno di costruzione:
1900
Riscaldamento:
Autonomo
Tipo impianto:
A radiatori
Tipo alimentazione:
Metano

Ti interessa visionare l'immobile?

Fissa un appuntamento  Fissa un appuntamento

Richiedi informazioni

Clicca su Leggi per aprire l'informativa
* Questi campi sono obbligatori

Calcola il tuo mutuo

Semplice e senza impegno
Anticipo

( % )
Mutuo

( % )

pochi semplici passi

inserisci i tuoi dati
Questionario completato
Grazie per aver richiesto un appuntamento senza impegno con un nostro Consulente del Credito e Assicurativo.

Hai inserito correttamente tutti i dati necessari e a breve riceverai una e-mail con un link da convalidare per inviare i tuoi dati.
Affiliato
Merulana 1 Srl
Via Machiavelli, 1 00185 Roma (RM)

Il nostro staff


  • Gino Cannizzaro
    Affiliato

  • Franca Casetti
    Coordinatrice

  • Luigi Falco
    Collaboratore

  • Giordano Viti
    Collaboratore
Via Machiavelli, 1 00185 Roma (RM)
Zona: Centro Storico-Colosseo-Piazza San Giovanni-Piazza Vittorio-Monti
Mostra su mappa
Orari: Siamo a vostra disposizione dalle 09.00 alle 13.00 e dalle 15.00 alle 19.30. Il sabato mattina dalle 09:00 alle 13:00.
Affiliato
Merulana 1 Srl
Via Machiavelli, 1 00185 Roma (RM)

2026 Tecnocasa Franchising S.p.A. - P. IVA 08365160152 - Via Monte Bianco 60/A 20089 Rozzano (MI). Ogni agenzia ha un proprio titolare ed è autonoma. Privacy policy | Policy utilizzo | Cookie policy