Quadrilocale in vendita

Roma, Via di San Giovanni in Laterano - Colosseo
€ 490.000
3 locali 3 locali
90 Mq 90 Mq
2 bagni 2 bagni

Quadrilocale in vendita

Roma, Via di San Giovanni in Laterano - Colosseo

Descrizione annuncio

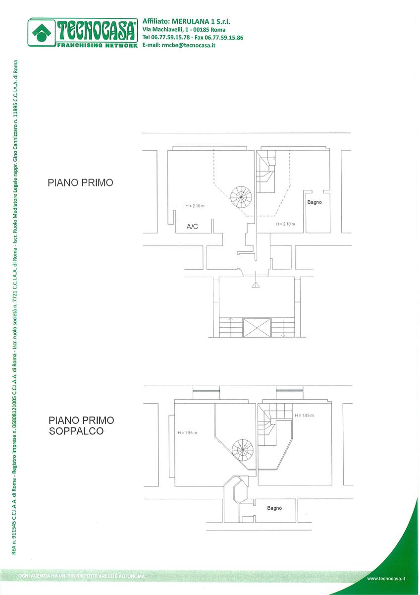
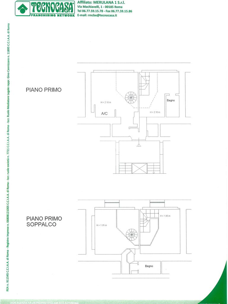
Via di San Giovanni in Laterano - A pochi passi dal Colosseo, al primo piano di un elegante stabile di fine '800 con servizio di portineria intera giornata, proponiamo in vendita un appartamento attualmente suddiviso in due unità abitative indipendenti, ciascuna con ingresso autonomo.

L’immobile si apre su un ingresso con disimpegno dal quale si accede a due appartamenti indipendenti.
Il primo, un bilocale, è composto da un soggiorno con angolo cottura e un locale sauna. Una scala in ferro conduce al soppalco abitabile, dove si trovano la zona notte e il bagno.
Il secondo appartamento dispone di un soggiorno con angolo cottura, un locale sauna e un bagno. Anche in questo caso, una scala in legno porta al soppalco abitabile che ospita la zona notte.

Entrambi gli appartamentini, finemente ristrutturati, si distinguono per il loro fascino unico, impreziositi dai soffitti a volta con mattoni a vista e affreschi decorativi, che conferiscono loro un carattere unico.

Le caratteristiche dell'immobile, la vicinanza al Centro Storico e gli ottimi collegamenti con i mezzi pubblici, la stazione Termini, la fermata della Metro B a pochissimi passi, fanno di questa proposta un'ottima soluzione immobiliare per uso investimento.

Mostra tutto

Nelle vicinanze

Trasporto pubblico Trasporto pubblico
Colosseo
Colosseo
680 m
Manzoni
Manzoni
690 m
Termini Laziali
Termini Laziali
1,1 Km
Santa Bibiana
Santa Bibiana
1,2 Km
Colosseo
Colosseo
410 m
Ricariche auto elettriche Ricariche auto elettriche
Best Western Hotel President
670 m
Roma Dipartimento Tutela Ambientale | EnelX
830 m
Eneldrive Magnagrecia
1,0 Km
Roma Ricci | EnelX
1,0 Km
Roma Piazza Venezia | EnelX
1,6 Km
Scuole Scuole
Istituto Comprensivo Guicciardini
290 m
Pontificia Università Antonianum
420 m
Collegio S. Antonio
450 m
Dipartimento di Ingegneria informatica, automatica e gestionale "Antonio Ruberti"
470 m
Pontificia Università Lateranense
540 m
Farmacia Farmacia
Farmacia
310 m
Farmacia Merulana
390 m
Farmacia Colle Oppio
450 m
Trecca Mastrangeli
660 m
Farmacia Cuzzocrea Dottor Antonino
710 m
Ospedali Ospedali
Ospedale Militare Celio
240 m
Policlinico militare di Roma "Celio"
360 m
Azienda Ospedaliera San Giovanni - Addolorata (Presidio Santa Maria)
390 m
Azienda Ospedaliera San Giovanni Addolorata
400 m
Azienda Ospedaliera San Giovanni-Addolorata (Presidio S.Giovanni)
400 m
Supermercati Supermercati
Carrefour Express
380 m
Coop
390 m
Conad
570 m
Simply Market
660 m
Tuodì
670 m
Negozi Negozi
Negozi
100 m
Artigeco
230 m
Marco Aurelio
300 m
Tuodi Market
320 m
Alimentari Romoli
370 m
Bar Bar
San Clemente
80 m
Shamrock Irish bar & restaurant
270 m
Divin Ostilia
290 m
La Follia
290 m
Bar
310 m
Ristoranti Ristoranti
Hostaria Isidoro Al Colosseo
20 m
Ristorante Isidoro
40 m
Li Rioni
80 m
I clementini
120 m
Naumachia
190 m
Mostra tutto

Caratteristiche

Rif.:
61140166
Piano:
1 di 5 con ascensore (Piano basso)
Camere da letto:
2
Arredamento:
Completo
Condizionamento:
Autonomo
Ascensore:
Mostra tutto
Prezzo Prezzo
€ 490.000
Rata mutuo Rata mutuo
€ 2.322 / mese
Proponi il tuo prezzoProponi il tuo prezzo

Classe Energetica

G
G
G
G
G
G
G
G
G
EP globale non rinnovabile:
175.00 kW h/m² anno
EP globale rinnovabile:
175.00 kW h/m² anno
EP invernale del fabbricato:
EP estiva del fabbricato:
Anno di costruzione:
1900
Riscaldamento:
Centralizzato
Tipo impianto:
A radiatori
Tipo alimentazione:
Metano

Ti interessa visionare l'immobile?

Fissa un appuntamento  Fissa un appuntamento

Richiedi informazioni

Clicca su Leggi per aprire l'informativa
* Questi campi sono obbligatori

Calcola il tuo mutuo

Semplice e senza impegno
Anticipo

( % )
Mutuo

( % )

pochi semplici passi

inserisci i tuoi dati
Questionario completato
Grazie per aver richiesto un appuntamento senza impegno con un nostro Consulente del Credito e Assicurativo.

Hai inserito correttamente tutti i dati necessari e a breve riceverai una e-mail con un link da convalidare per inviare i tuoi dati.
Affiliato
Merulana 1 Srl
Via Machiavelli, 1 00185 Roma (RM)

Il nostro staff


  • Gino Cannizzaro
    Affiliato

  • Franca Casetti
    Coordinatrice

  • Luigi Falco
    Collaboratore

  • Giordano Viti
    Collaboratore
Via Machiavelli, 1 00185 Roma (RM)
Zona: Centro Storico-Colosseo-Piazza San Giovanni-Piazza Vittorio-Monti
Mostra su mappa
Orari: Siamo a vostra disposizione dalle 09.00 alle 13.00 e dalle 15.00 alle 19.30. Il sabato mattina dalle 09:00 alle 13:00.
Affiliato
Merulana 1 Srl
Via Machiavelli, 1 00185 Roma (RM)

2026 Tecnocasa Franchising S.p.A. - P. IVA 08365160152 - Via Monte Bianco 60/A 20089 Rozzano (MI). Ogni agenzia ha un proprio titolare ed è autonoma. Privacy policy | Policy utilizzo | Cookie policy